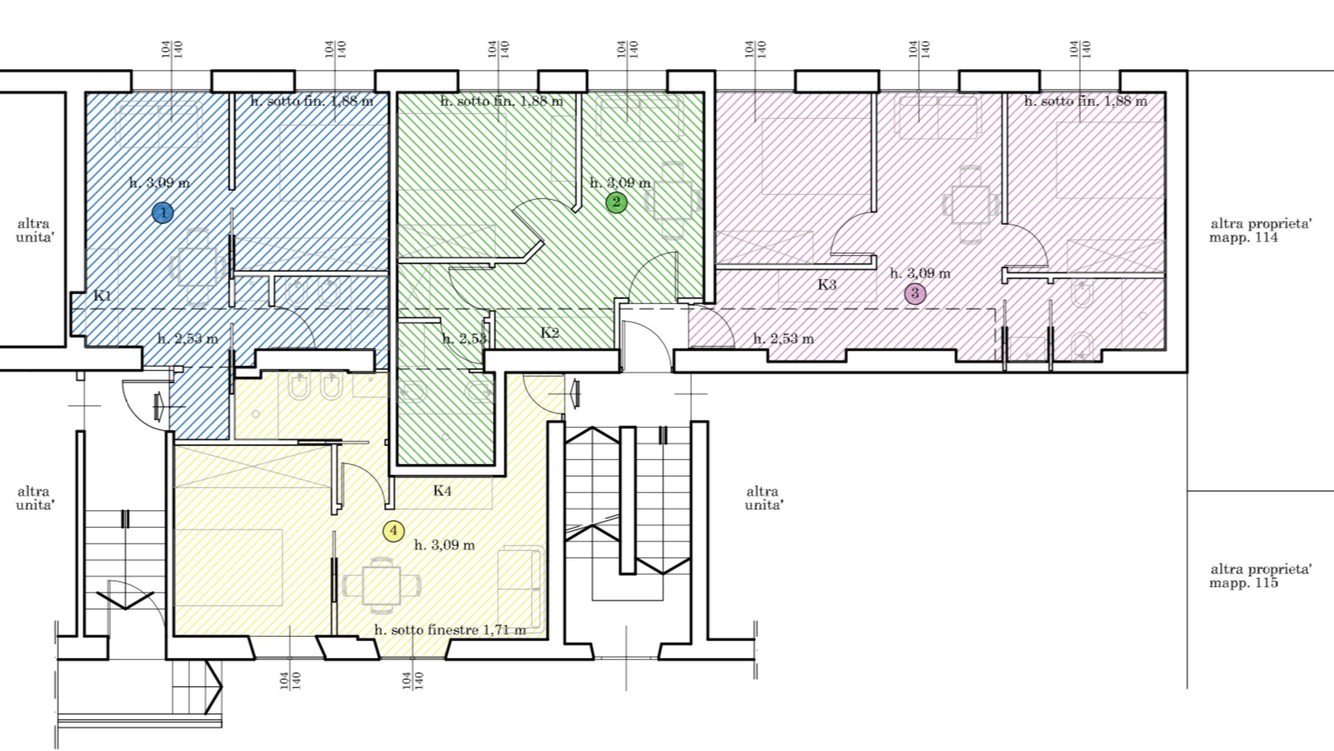
Via Genovesi 1, Milano
Secured loan to develop 4 apartments in Milan





Financé
Investi
€ 135000objectif
€ 0| Objectif de financement: | € 135000 |
| Rendement attendu: | 12.12 % par an |
| Durée de l'investissement: | 10 mois |
| Catégorie de risque: | |
| LTV: | Risque faible % |
| Capital stack: | Prêt garanti |
Afficher plus
Informations clés sur les investissements
Offre de financement participatif terminée
Statut
Terminé
Emprunt de fonds
€ 135000Rendement réel
11.84% par anDurée de l'investissement
10 moisCatégorie de risque
Investi
€ 135000objectif
€ 0